我的位置: 上观号 > 上海嘉定 > 文章详情

新建237套征收安置房,位置→

转自:上海嘉定 2026-02-23 11:36:00

@嘉定的小伙伴

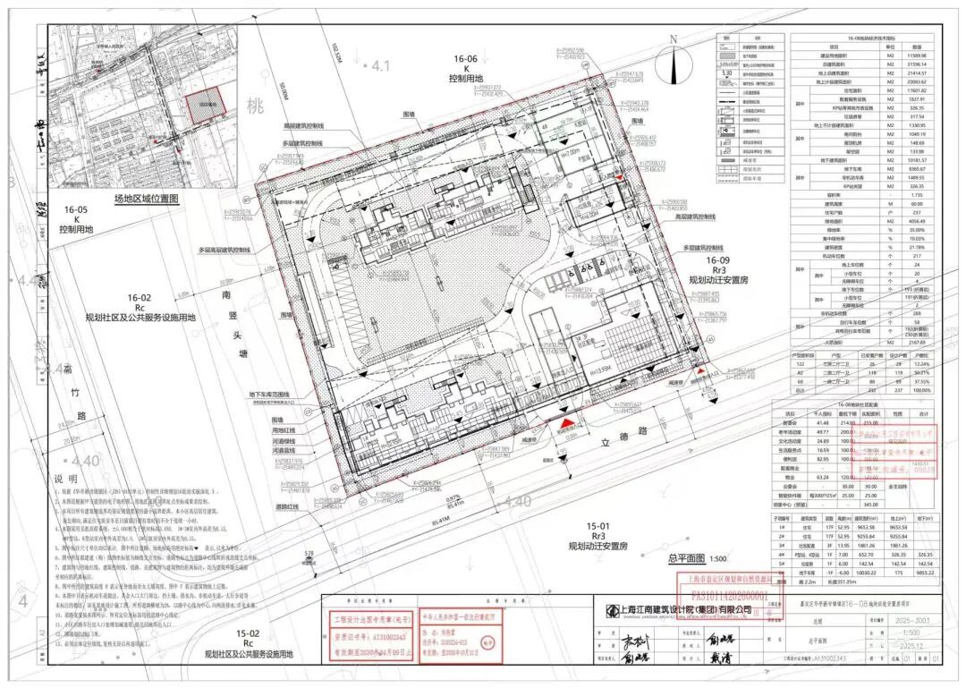
华亭新市镇镇区16-08地块

已获得建设工程规划许可

将新建征收安置房237套

详见↓

建设单位

上海亭舟置业有限公司

建设项目名称

嘉定区华亭新市镇镇区16-08地块

征收安置房项目

总平面图

建设位置

嘉定区华亭镇

东至用地边界,南至规划立德路

西至南竖头塘,北至用地边界

建设规模

总建筑面积31596.14平方米

(地上建筑面积21414.57平方米,

地下建筑面积10181.57平方米)

计容面积20083.62平方米

主要经济技术指标

通讯员:嘉小规
编辑:袁悦

点赞分享给身边的人